Uutuus!

Aamunkajo – mökki

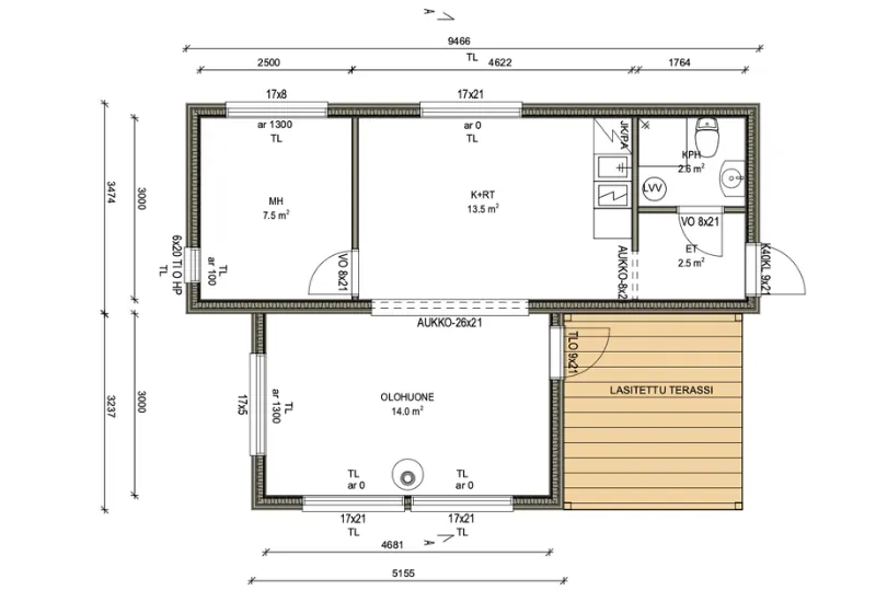
Mallisto > Uniikki®-mallisto > Aamunkajo – mökki

kerrosala

49,6 kem²
Aamunkajo on käytännöllinen mökki kahdella sisäänkäynnillä. Toinen sisäänkäynneistä mahdollistaa pääsyn suoraan märkätiloihin, mikä helpottaa elämää erityisesti märkään vuodenaikaan.

Rakennukset on suunniteltu alle 30 kem², jotta ne kuuluvat rakennuslupauudistuksen piiriin ja helpottavat rakentamisen aloitusta.

Aamunkajo

koko

49.6 kem2
Sisältää makuuhuoneen, keittiö- ja ruokailutilan, kylpyhuoneen, kuraeteisen, olohuoneen sekä lasitetun terassin.

Kaikki Uniikki®-mallit yhdistettävissä keskenään

Uniikki®-mallisto yhdistää laadukkaan suunnittelun ja muunneltavuuden. Malliston rakennuksissa piilee erityinen ominaisuus, sillä niitä on mahdollista yhdistellä keskenään – mallista riippumatta. Näin luodaan suurempia ja monikäyttöisempiä kokonaisuuksia, jotka mukautuvat yksilöllisesti juuri sinun tarpeisiisi.

Yhdisteleminen voi tapahtua vaiheittain niin, että hankit aluksi yhden rakennuksen ja myöhemmin laajennat haluamallasi tavalla.

Näin toimitus etenee

Valitse itsellesi sopivin toimitusvaihtoehto.

1

Myyjämme on apunasi valinnoissa ja suunnittelussa

2

Valmistus sisällä
tehdastiloissa valmiiksi asti

3

Kuljetus ja nosto
perustuksen päälle

4

Piharakennus on lopputarkastettu ja käyttövalmis!

KUVAGALLERIA

EI ENNAKKOMAKSUJA!

Markkinoiden riskittömin toimitus

Tiesitkö, että ostaessasi Tervas-rakennuksen, maksat 100% vasta rakennuksen valmistuttua. Saat juuri sellaisen rakennuksen, jonka olet tilannut etkä maksa etumaksuja ennen tuotteen saamista.

Halutessasi järjestämme rahoituksen piharakennuksellesi:

PIHASAUNAT

alk.

187€

/kk

SAUNAMÖKIT

alk.

350€

/kk

Hyödynnä myös tarjoamamme 6kk kuluton ja koroton maksuaika!

Tarkemmat tiedot

Tervas® rakennuksiin on erilaisia valmiita, ammattilaisten suunnittelemia valintoja, joilla teet omasta pihasaunasta, saunamökistä tai aitasta itseäsi miellyttävän tai tontillesi istuvan.

Katto, ikkunat ja ovet

Kaikki Tervas -mallit on saatavilla pulpetti- tai harjakatolla. Voit vaihtaa myös ikkunoiden kokoja ja lisätä ovia. Malleissa on mietitty valmiiksi, mitä muita ikkunakokoja malliin sopii ja mihin sopisi lisäovi lisäämään käytännöllisyyttä.

Pohjavaihtoehdot

Jokainen malli on käännettävissä peilikuvaksi. Lisäksi mallista riippuen tarjolla on eri koko- ja pohjavaihtoehtoja. Tarjolla myös erilaisia laude- ja tilaratkaisuja.

Materiaalivalinnat

Piharakennusmallit ja niiden yksityiskohdat saa eri sävyissä omien toiveiden mukaan. Viimeistelyyn on tarjolla runsaasti lisävalintoja, kuten kattopanelointi, valaistus, sähköistys ja kiuasmalli.

Ikkunat saatavilla myös peililasilla

Siirrä osoitinta kuvan päällä ja näe miten peililasi muuttaa saunan ulkonäköä ja näkymää sisälle. Kun valitset ikkunaan peililasin, voit nauttia avaran ikkunan upeasta tunnelmasta hieman enemmän katseilta suojassa.

Tervas rakennusten esite

Tilaa Tervas® Piharakennusesite

Piharakennusesitteestä löydät mallistomme sekä lisää tietoa meistä. Voit tilata pelkästään digiversion tai halutessasi myös printtiversion kotiisi maksutta.

Tervas rakennetakuu 12 vuotta

12 vuoden Takuu

Tervas® saunan hirsi- ja runkorakenteille annamme 12 vuoden takuun. Takuuaika alkaa saunan luovutuksesta asiakkaalle. Saat olla turvallisin mielin myös saunasi valmistuksen, kuljetuksen ja asennuksen ajan, sillä Tervas® saunasi on vakuutettu kattavasti luovutukseen asti.

TERVAS® KYLPYTUPA™ – SAUNAPESEYTYMISEN VALLANKUMOUS

Toimme Tervas® saunan ylivertaisen löylynautinnon jatkoksi saman tasoisen peseytymiskokemuksen. Nostimme saunapeseytymisen aivan uudelle tasolle.